Природа как часть интерьера
Дом идеально вписывается в окружающий густой лес, создавая ощущение полного слияния с природой. Архитектурное решение дома ориентировано на создание комфортного пространства для семьи. Для тех, кто ищет баланса с природой, этот дом – оптимальный выбор жилья.
КОНЦЕПЦИЯ
Взаимодействие с природой - философия проекта. Основная идея проекта заключалась в том, чтобы максимально открыть внутреннее пространство внешнему миру, позволив природным элементам стать частью интерьера. Большие витражные окна стирают границы между домом и лесом, наполняя помещения мягким светом.
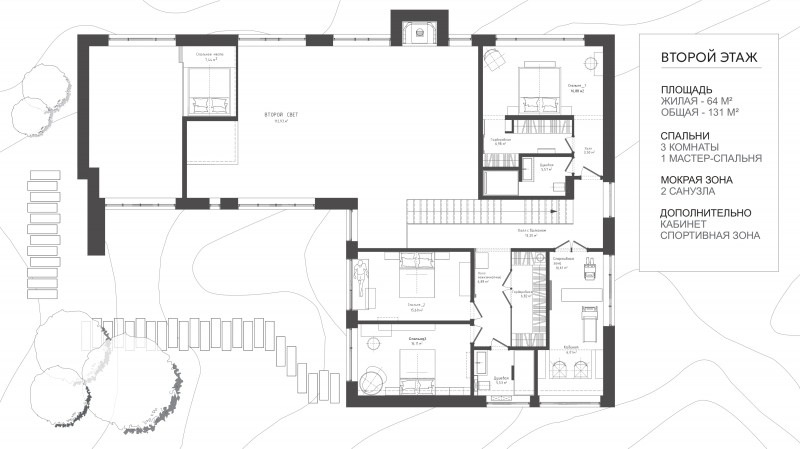
Планировка дома | функциональное зонирование
Планировка дома разработана с учётом различных потребностей и предполагает гибкость для создания идеального пространства. Вы можете оставить предложенную планировку, которая уже оптимизирована для удобства, или мы можем откорректировать её под определённые параметры и Ваши запросы.
Изменение количества жилых комнат: при необходимости можно добавить комнаты для гостей, детей или рабочего кабинета, или уменьшить их количество, сохранив функциональность.
Гараж и место для машины: вы можете добавить или убрать гараж в зависимости от ваших нужд. Если нужен только паркинг, мы создадим удобное место для одной или нескольких машин.
Дополнительные хозяйственные помещения: мы можем добавить кладовые, прачечные и другие помещения в планировку, для повышения удобства и функциональности вашего дома.
Изменение площади общего пространства: мы можем адаптировать размеры гостиной или кухни, увеличивая или уменьшая их для создания комфортного интерьера.
Мы готовы адаптировать проект дома и его расположение под особенности вашего участка. Это может включать:
- изменение ориентации дома для максимального использования солнечного света.
- расположение дома против ветра/севернее/южнее.
- размещение дома на участке, в зависимости от въезда и так далее.
Мы стремимся создать комфортное пространство, которое будет соответствовать всем вашим пожеланиям.
Выбор местоположения
Мы свяжемся с Вами в течение дня.