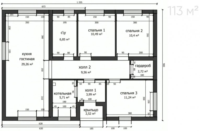
Данный проект дома станет воплощением вашей мечты о собственном уютном и современном жилье. Этот дом — это не просто стены и крыша, это тщательно продуманное пространство, где каждая деталь работает на создание максимального комфорта и удобства для всей вашей семьи.
Акцент сделан на логичном зонировании пространства и максимальной эргономике. Атмосфера, которую стремится создать этот дом — это спокойствие, уют и комфорт. Продуманная планировка позволяет каждому члену семьи найти свое личное пространство, а общие зоны способствуют тесному общению.
Выбор местоположения
Мы свяжемся с Вами в течение дня.